St. Ingbert! Top! Exklusives 3-ZKB Penthouse im Neubauprojekt in Holzhybridbauweise. PH, Whg. 7
Beschreibung:
Das Neubauprojekt umfasst insgesamt acht hochwertige Wohneinheiten in zentraler, ruhiger Lage.Die Architektur verbindet zeitlose Eleganz mit nachhaltigen Baukonzepten. Die Grundrisse überzeugen durch klare Strukturen, lichtdurchflutete Räume und hochwertige Materialien.
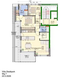
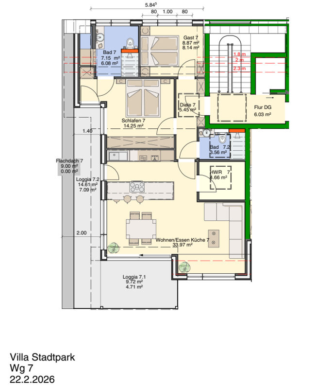
Die Penthouse-Wohnung bietet ca. 85 m² Wohnfläche, aufgeteilt in 3 Zimmer, 2 Bäder, ein Hauptschlafzimmer mit direktem Zugang zum Bad, ein Gästezimmer, einen Hauswirtschaftsraum und einen ca. 25 m² großen Balkon, teilweise überdacht.
Anschlüsse für eine Sauna sind vorhanden!
Der direkte Zugang zur Penthouse-Wohnung erfolgt barrierefrei über einen Aufzug, der Sie direkt in die Wohnung führt.
Der offene Wohnbereich erstreckt sich über ca. 34 m² und überzeugt durch bodentiefe Fenster bzw. Schiebeelemente und einen direkten Balkonzugang. Zwei modern gestaltete Bäder sorgen für höchsten Komfort, während das Gästezimmer zusätzliche Annehmlichkeiten bietet. Der Hauswirtschaftsraum bietet ausreichend Stauraum und techniknahe Voraussetzungen.
Die Sauna lädt zu entspannenden Wellnessmomenten ein.
Die Konstruktion erfolgt in Holzhybridbauweise. Dabei werden Holzelemente mit tragfähigen Stahlelementen kombiniert. Vorteile bei Stahlbeton der Holzbauweise sind eine hohe Tragfähigkeit bei vergleichsweise geringem Gewicht, eine ausgezeichnete Dämmung und eine luftdichte Bauweise, die Wärmeverluste minimiert. Holz sorgt zudem für eine natürliche Feuchte-Regulierung und einen gesunden Wohnraum. Die Bauweise ermöglicht eine nachhaltige Ökobilanz durch den Einsatz erneuerbarer Rohstoffe, geringe Lebenszykluskosten und Potenzial für den Einsatz regenerativer Energiesysteme. Emissionsarme Baustoffe und hochwertige Oberflächen runden das Profil ab. In der Geometrie ergeben sich attraktive Sichtachsen und großzügige, lichtdurchflutete Räume.
Das Penthouse profitiert von bodentiefen Fensterfronten, einer Deckenheizung mit individueller Steuerung die im Sommer auch zur Kühlung genutzt werden kann, hochwertigen Bodenbelägen in Wohnräumen und modernen Fliesen in den Bädern. Die Sanitärkeramik und Armaturen stammen von renommierten Herstellern. Eine offene Küchenlösung oder eine Designer-Küche kann nach Käuferwunsch realisiert werden.
Optional lassen sich Smart-Home-Komponenten für Beleuchtung, Heizung und Sicherheit integrieren. Zudem sind ausreichend Steckdosen, TV-/Daten-Verkabelung sowie Anschlüsse vorgesehen.
Es wird ein moderner energetischer Standard angestrebt, mit effizienter Heizung, optimaler Dämmung um Betriebskosten niedrig zu halten und ein angenehmes Raumklima zu garantieren.
Es besteht die Möglichkeit, Materialien, Bad-Design, Küchenlösungen und Grundrisse individuell an Ihre Wünsche anzupassen, abhängig vom Baufortschritt und den Bauträgerbedingungen.
Auf Wunsch stehen zusätzlich Stellplätze gegen einen Aufpreis zu Verfügung.
Es stehen 8 weitere Wohneinheiten auf Anfrage zum Verkauf zur Verfügung!!!
Lagebeschreibung:
Das Neubauprojekt befindet sich in St. Ingbert, einer attraktiven Mittelstadt im Saarland, zentral gelegen. Die Umgebung zeichnet sich durch eine ruhige Wohngegend mit guter Nahversorgung und schnellem Bezug zur Innenstadt aus. Der direkte gelegene Stadtpark bietet grüne, erholsame Flächen und erweitert die Lebensqualität der Lage. Wohnräume mit SüdausrichtungVerkehrsanbindung: Gute Anbindung an die B41 und regionale Straßen; ÖPNV in der Nähe; schnelle Erreichbarkeit von Saarbrücken und Homburg über Autobahnen.
Infrastruktur: Vielfältiges Angebot an Einkaufsmöglichkeiten, Schulen, Kitas, Ärzten und Freizeitangeboten in der näheren Umgebung.
Nähe/Perspektive: Zentrale, aber ruhige Wohnlage – kurze Wege zu Einkaufsmöglichkeiten, Bäcker, Apotheke und Café/Restaurant; direkte direkt gelegen am Stadtpark.
Fußläufige Erreichbarkeit von Grundversorgung, medizinischer Versorgung und öffentlichen Einrichtungen; Grünflächen und Erholungswege im Stadtpark schnell erreichbar.
Die Lage bietet eine ausgewogene Mischung aus städtischer Infrastruktur und Wohnqualität; Potenzial für wohn- und investitionsorientierte Nutzungen durch zentrale Lage und gute Infrastruktur.
Ausstattung:
Energieausweis:
- Main energy source:
- Wind / Water heat pump
Ausstattungsbeschreibung:
• Schnelle Bauweise• Ökologischer Holzbau
• hochwertiger Luft- und Trittschallschutz
• langlebige Materialien mit geringeren Aufwendungen für spätere Sanierungen
• Deckenheizung mit Kühlfunktion – hervorragendes, gesundes Wohnraumklima
• hochwertige hinterlüftete Fassade mit hoher Langlebigkeit, die das Wohnraumklima
ebenso noch positiv unterstützt
• Aluminiumfenster mit 3-fach Isolierverglasung
Sonstige Angaben:
Provision:Die Maklerprovision in Höhe von 2,38% inkl. 19% MwSt vom Kaufpreis ist mit Abschluss des Kaufvertrages verdient und fällig. RE/MAX erhält einen unmittelbaren Zahlungsanspruch gegenüber dem Käufer (Vertrag zugunsten Dritter, § 328 BGB).
Hinweise:
Alle in diesem Exposé aufgeführten Daten basieren auf Angaben des Verkäufers und bedürfen ggf. der Einzelfallprüfung.
Sie wollen mehr erfahren?
Wenn Sie uns eine Nachricht über das Kontaktformular senden, melden wir uns schnellstmöglich bei Ihnen:


















