Kirkel! Hochwertige 4-ZKB Eigentumswohnung im Neubauprojekt in Holzhybridbauweise. EG, Whg. 2
Beschreibung:
Das Neubauprojekt umfasst insgesamt acht hochwertige Wohneinheiten in zentraler, ruhiger Lage.Die Architektur verbindet zeitlose Eleganz mit nachhaltigen Baukonzepten. Die Grundrisse überzeugen durch klare Strukturen, lichtdurchflutete Räume und hochwertige Materialien.
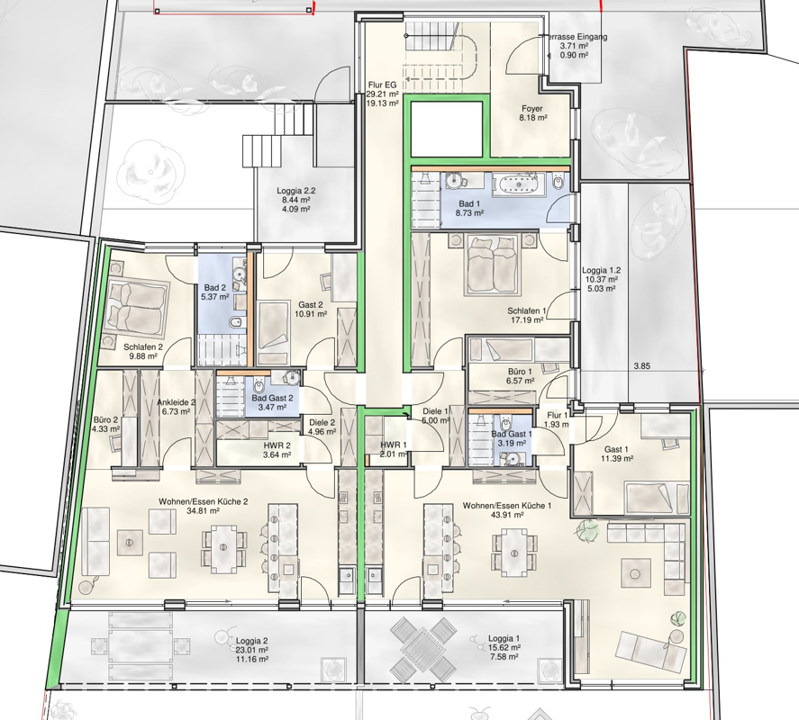
Diese Wohnung im Erdgeschoss bietet ca. 112 m² Wohnfläche, aufgeteilt in 4 Zimmer, 2 Badezimmer, Gäste-WC, einen Hauswirtschaftsraum und zwei Terrassen mit ca. 26 m² Fläche. Die große Terrasse mit ca. 16 m², die kleine mit ca. 10 m².
Der direkte Zugang zur Wohnung erfolgt barrierefrei, der Sie direkt in die Wohnung führt.
Der offene Wohnbereich erstreckt sich über ca. 44 m² und einen direkten Terrassenzugang. Der Hauswirtschaftsraum bietet ausreichend Stauraum und techniknahe Voraussetzungen.
Die Konstruktion erfolgt in Holzhybridbauweise. Dabei werden Holzelemente mit tragfähigen Stahlelementen kombiniert. Vorteile bei Stahlbeton der Holzbauweise sind eine hohe Tragfähigkeit bei vergleichsweise geringem Gewicht, eine ausgezeichnete Dämmung und eine luftdichte Bauweise, die Wärmeverluste minimiert. Holz sorgt zudem für eine natürliche Feuchte-Regulierung und einen gesunden Wohnraum. Die Bauweise ermöglicht eine nachhaltige Ökobilanz durch den Einsatz erneuerbarer Rohstoffe, geringe Lebenszykluskosten und Potenzial für den Einsatz regenerativer Energiesysteme. Emissionsarme Baustoffe und hochwertige Oberflächen runden das Profil ab. In der Geometrie ergeben sich attraktive Sichtachsen und großzügige, lichtdurchflutete Räume.
Die Wohnung profitiert von bodentiefen Fensterfronten, einer Deckenheizung mit individueller Steuerung die im Sommer auch zur Kühlung genutzt werden kann, hochwertigen Bodenbelägen in Wohnräumen und modernen Fliesen in den Bädern. Die Sanitärkeramik und Armaturen stammen von renommierten Herstellern. Eine offene Küchenlösung oder eine Designer-Küche kann nach Käuferwunsch realisiert werden.
Optional lassen sich Smart-Home-Komponenten für Beleuchtung, Heizung und Sicherheit integrieren. Zudem sind ausreichend Steckdosen, TV-/Daten-Verkabelung sowie Anschlüsse vorgesehen.
Es wird ein moderner energetischer Standard angestrebt, mit effizienter Heizung, optimaler Dämmung um Betriebskosten niedrig zu halten und ein angenehmes Raumklima zu garantieren.
Es besteht die Möglichkeit, Materialien, Bad-Design, Küchenlösungen und Grundrisse individuell an Ihre Wünsche anzupassen, abhängig vom Baufortschritt und den Bauträgerbedingungen.
Aufgrund von gewünschten veränderten Innenausbaus können sich bei den Flächenangaben Abweichungen ergeben.
Auf Wunsch stehen zusätzlich Stellplätze gegen einen Aufpreis zu Verfügung.
Es stehen 7 weitere Wohneinheiten auf Anfrage zum Verkauf zur Verfügung!!!
Lagebeschreibung:
Kirkel ist eine Gemeinde im Saarpfalz-Kreis im Saarland im Osten des Saarlands, etwa rund 20 km östlich von Saarbrücken und 8 km südöstlich von Neunkirchen gelegen.Die Kaiserstraße verläuft durch den Ortsteil Kirkel-Neuhäusel, der zentral im Gemeindegebiet liegt und an benachbarte Stadtteile wie Limbach und Rohrbach angrenzt.
Sie ist eine wichtige Durchgangs- und Geschäftsstraße (Landesstraße L 119) mit Wohn-, Gewerbe- und Dienstleistungsnutzung. Entlang dieser Straße befinden sich u. a. Geschäfte, Dienstleister, kleine Gewerbebetriebe und Wohnhäuser.
Die Kaiserstraße liegt in einem gemischten Bereich aus Wohn- und Gewerbenutzung: In der direkten Umgebung findest du z. B. Restaurants und unterschiedliche lokale Anbieter, Handwerks- oder Dienstleistungsbetriebe.
Die Straße hat zwei Fahrspuren, Gehwege und ist innerorts mit Geschwindigkeitsbegrenzungen beschildert.
Kirkel wird durch den Bahnhof Kirkel an der Saarbrücker Hauptstrecke Mannheim–Saarbrücken erschlossen, der fußläufig erreichbar ist und Regionalzüge anbietet.
Über die nahe gelegenen Autobahnen A6 und A8 sind größere Städte wie Homburg, Neunkirchen oder Saarbrücken schnell erreichbar.
Die Gemeinde Kirkel ist eingebettet in eine grüne Landschaft mit Waldgebieten und hat Sehenswürdigkeiten wie die Burg Kirkel, die nur wenige Minuten vom Ortszentrum entfernt liegt und als historisches Wahrzeichen gilt.
Ausstattung:
Energieausweis:
- Main energy source:
- Wind / Water heat pump
Ausstattungsbeschreibung:
- Ökologischer Holzbau- Die Außenwände werden mit einer hochwertigen vorgehängten, hinterlüftenden und nahezu sanierungsfreien Fassade ausgeführt
- Hochwertiger Luft- und Trittschallschutz
- Hochwertiger Wärmeschutz
- Aluminiumfenster mit Schiebeelementen
- Barrierefreier Wohneinheiten
- Aufzug
Sonstige Angaben:
Provision:Die Maklerprovision in Höhe von 2,38% inkl. 19% MwSt vom Kaufpreis ist mit Abschluss des Kaufvertrages verdient und fällig. RE/MAX erhält einen unmittelbaren Zahlungsanspruch gegenüber dem Käufer (Vertrag zugunsten Dritter, § 328 BGB).
Hinweise:
Alle in diesem Exposé aufgeführten Daten basieren auf Angaben des Verkäufers und bedürfen ggf. der Einzelfallprüfung.
Sie wollen mehr erfahren?
Wenn Sie uns eine Nachricht über das Kontaktformular senden, melden wir uns schnellstmöglich bei Ihnen:






